Showing 120 of 120on this page. Filters & sort apply to loaded results; URL updates for sharing.120 of 120 on this page
Schematic presentation of the Uniform Force Method (UFM). | Download ...
Uniform Force Method | PDF
Corner Connection-to-Column Web: General Uniform Force Method (AISC ...
Uniform Force Method — Bracing Connections to Column Base Plates | Eng-Tips
Uniform Force Method Design Examples | PDF | Mechanical Engineering ...
Force method example #1: one degree indeterminate - YouTube
Designing Compact Gussets With The Uniform Force Method | PDF | Truss ...
AISC Uniform Force Method Handouts 4 Per - REV 1 | PDF | Beam ...
Force method example #2: two degrees indeterminate (part 1/3) - YouTube
Closure - Designing Compact Gussets With The Uniform Force Method PDF ...
Force Method "ultimate" Example for Beams (1/4) - Structural Analysis ...
Uniform Force Method Overview | PDF | Beam (Structure) | Truss
Uniform Force Method FAQs for Steel Design | PDF | Beam (Structure ...
Force Method Example | PDF
Uniform Force Method. | Download Scientific Diagram
GUEST POST – Preliminary Design and Thoughts on the Uniform Force ...
Steel Brace Design (Uniform Force Method Welded Gusset Plate)
Figure A.1-Uniform Force Method (Johnson 2005) | Download Scientific ...
Internal Force Diagram: Uniform and Point Load Example. Bending moment ...
Force Method Introduction Part 1 of 2 - Structural Analysis - YouTube
Force Method Example: Beam Fixed at Both Ends - YouTube
Table 1 from Closure: Designing Compact Gussets with the Uniform Force ...
Plate geometry with uniform force and boundary condition | Download ...
Steel Brace Design (Uniform Force Method) - YouTube
Método de la fuerza Uniforme UFM (Uniform Force method) Para CBF ...
Method: Uniform Circular Motion : Examples of Uniform Circular Motion : M..
Chapter 10-Force Method for Beams - YouTube
Uniform beam with uniformly distributed load and end shear forces and ...
Moments - Beam Fixed at Both Ends Subjected to a Uniform Distributed ...
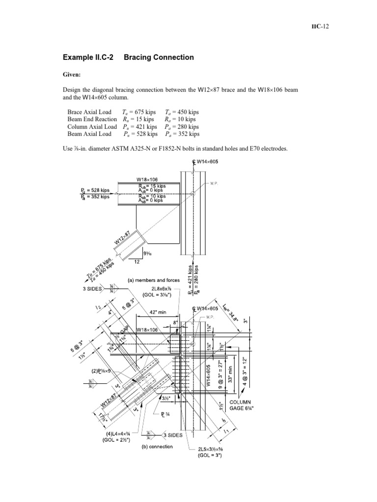
Design of Bracing Connections in Concentrically Braced Frames
HSS Brace Connections to HSS Column and WF Beam | Steel Tube Institute
Eliya Henin II
An Excerpt of Connections 2: Vertical Brace Connections with the Unifo ...