Showing 119 of 119on this page. Filters & sort apply to loaded results; URL updates for sharing.119 of 119 on this page
Benefits and Features Of GE/ Alstom P642
P642 PSL | PDF
Schneider Micom P642 relay | P642 Advanced Transformer Protection
Schneider micom p642 protection relay p64231pa6m0048j – Aeliya Marine Tech
Schneider micom p642 current relay p64221bd6m0048j – Aeliya Marine Tech®
Alstom/Schneider P642 Relay slope testing Part1 - YouTube
Setting file configuration of Micom P642 relays | Numerical ...
GE ALSTOM MiCOM Agile P642 transformer protection and Condition
Micom P642 - Catalogue | PDF | Transformer | Relay
Reset Alarm of P642 | PDF | Science & Mathematics
GE MiCOM Agile P642 Transformer Protection Relay at best price in Navi ...
GE P642 TECHNICAL MANUAL Pdf Download | ManualsLib
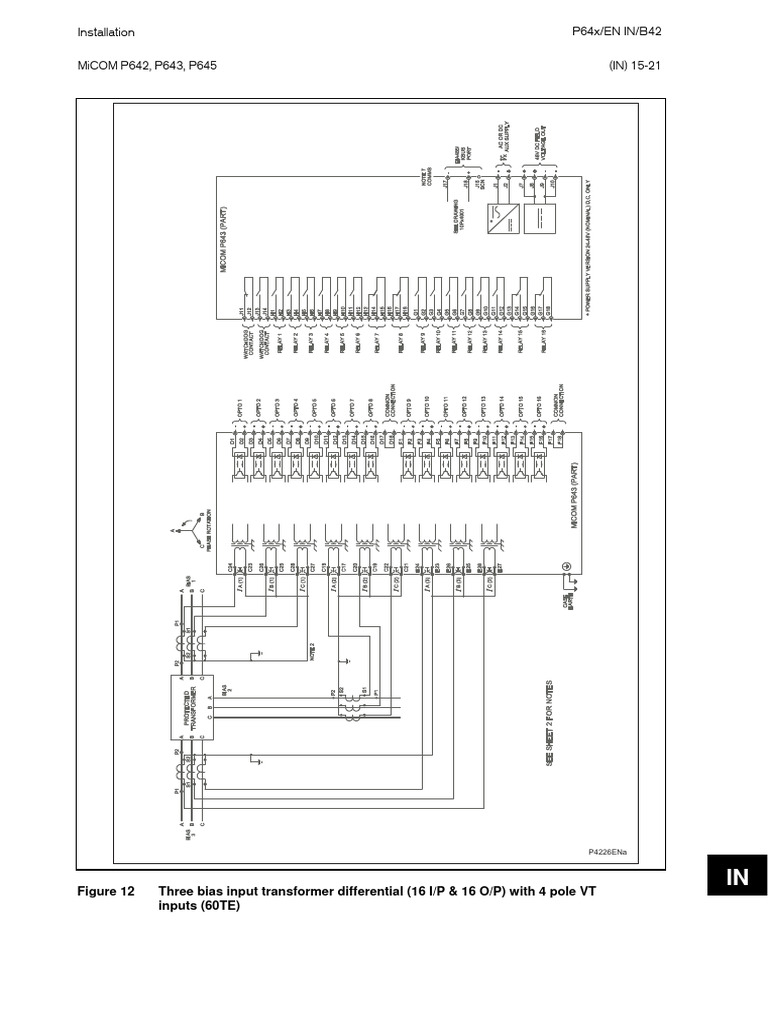
MiCOM P642 Connection | PDF
MiCOM P642 Wiring Installation Guide | PDF | Electrical Engineering ...
MasterSeal P642 v2 | PDF | Concrete | Epoxy
Fuji Electric P642 Small Intelligent Power Module Instruction Manual
MiCOM P642 Transformer Protection Manual | PDF | Transformer | Relay
Schneider Transformer Protection Relays, Model Name/Number: Micom P642 ...
Alstom/Schneider P642 differential relay slope test Part 2 - YouTube
P642
GE / ALSTOM MiCOM Agile P642 transformer protection and Condition ...
Yahoo!オークション - P642 ヴェルファイア アルファード DBA-GGH20W ...
MiCOM Agile P642 transformer protection | ALSTOM Numerical Relay
Micom P642 Test Results | PDF | Power Engineering | Electromagnetism
P642 - Test Report | PDF | Transformer | Electrical Substation
Schneider Electric Micom P642 Protection Relay P64231Pa6M0048J - Aeliya ...
P642 | Scorpio 23 – KND
GE Alstom MiCOM P642 Transformer Protection Relay, 24VDC/110VAC/220VAC ...
ALSTOM MiCOM P642 V06 Transformer PTT User Manual ENU | PDF ...
Jelcz P642 (1986) – DIECAST MODEL FEVER
Micom P642 Programmable Scheme Logic (B4) : K86A Trip Relay | PDF
Schneider micom p642 protection relay p64231ka6m0a08j – Aeliya Marine Tech
2021QTLK0703-LT-016 - P642 Setting - DM | PDF
GE MiCOM Agile P642 | Everest Instruments Store
GE P642 Relays Technical manual PDF View/Download
Injection Molded Polycase | P642 | Cases By Source
Fuji Electric P642 シリーズ インテリジェント パワー モジュール ユーザー マニュアル
P642 Back garden – Mexatua
Fuji Electric P642 series Small Intelligent Power Module User Manual
P642---B-M----J - MiCOM P642-Transzformátorvédelem-40TE-Előlapra szer ...
Micom Agile P642, P643, P645: Grid Solutions | PDF | Transformer | Relay
catalogue
Micom Alstom P642, P643, P645 Transformer Protection and Monitoring ...
PSL FILE CONFIGURATION IN MICOM P 642 RELAYS | MICOM NUMERICAL RELAYS ...
Manual de Relés MiCOM P642/P643 | PDF | Transformador | Relé
Micom Alstom P642, P643, P645: Transformer Protection Relay | PDF ...
P64x/EN AP/A32 Application Notes (AP) 6-46 MiCOM P642, P643 ...
Application of Protection and Monitoring Functions in Transformer ...
MiCOM P642/3/5 Agile | GE Vernova
NG budget gap widens to P642.8B - BusinessWorld Online | BusinessWorld ...
Power Semiconductors - Small IPM | Fuji Electric Global
Transformer Differential Protection | MiCOM-P642 (87T) | Micom P40 ...
IPC-P642-4-25X-AI
ELECTRICAL – PT PINDOTAMA MANDIRI
TC9S 2-P642-5M - Automation cables (Turck) - Gilson Engineering Sales, Inc
MiCOM P642, P643 et P645
A comprehensive guide to correct calculation for transformer ...
VC9S 2-P642-1M-PSG 3M - Automation cables (Turck) - Gilson Engineering ...
LEVEL. 03 DIFFERENTIAL PROTECTION (MICOM P642)SCHIEDIER - YouTube
Yahoo!オークション - P642【快速】Panasonic Let's Note CF-SZ6 Windo...
#ge #protectionrelay #micom #p14n #p14d #p94v #px40series #p442 #p642 # ...
HOZAN(ホーザン) P-642-J ESDソフトチップピンセット 先曲がり型 P642-J ネコポス対応品 お取り寄せ商品 プロ志向 プロ ...
갤럭시S21FE 범퍼 투명 하드 심플 젤리 케이스 p642- 이랜드몰
Daily Stoic x Sweet {P642} | Fandom
CES-P642-W22X 桦汉科技Ennoconn,咨询热线:400-868-0008
CES-P642-W42B 桦汉科技Ennoconn,咨询热线:400-868-0008
아이폰8 범퍼 투명 하드 심플 젤리 케이스 P642- 이랜드몰
RTTI——P642,动态转换,类型转换运算符-CSDN博客
CORSAIR MP600 Micro 2TB M.2 NVMe PCIe x4 Gen4 SSD - M.2 2242 - Lecture ...