Showing 118 of 118on this page. Filters & sort apply to loaded results; URL updates for sharing.118 of 118 on this page
How to Design a Smart and Modern Laboratory Layout - BOKA LAB
blueprint | INK Lab Design
Ink Lab Screen Printing Kentucky at Derrick Kleinman blog
Lab Layout | PDF
f2 | INK Lab Design
10 Laboratory Layout Tips to Improve Workflow and Efficiency — Lab ...
Correlating Ink Lab Drawdowns to Press | PDF | Communication Design ...
A visual of a lab layout designed for collaboration and teambased ...
swissQprint Ink Lab
Chemical Lab Design Layout at Laverne Gonsales blog
COLOR MANAGEMENT & INK LAB - Starprint Vietnam | Your Strategic Partner ...
Services – INK LAB
INK LAB – Toronto Graphics Studio
Ink Lab by Andrew Gerend on Dribbble
Ink Lab Tattoo - Ink Lab Tattoo added a new photo.
Create 'your color' at Ink Lab - The Korea Times
Noble Ink Lab - School of Art & Design
INK LAB TUTOR
Ink Lab Tattoos
Ink lab tattoo - Bronctattooaus.com
Yellow lab design studio com ink pad chart – Artofit
Microbiology Lab Layout
How do you design a lab layout that actually works, not just on paper ...
JohnsByrne In-House Ink Lab - JohnsByrne
How to Design Laboratory Layout for Any Science Lab - Westlab Spaces
Welcome To Our Ink Lab - ProCorr Display & Packaging
Ink Lab Studios | LinkedIn
Pennonia Ink Lab Swatch Tests – FOUNTAIN PEN INK ART
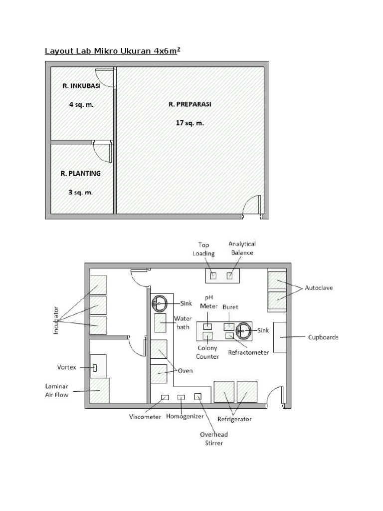
Print Draft Layout Lab Mikro | PDF
Ink Lab Tattoo - Studio Τατουάζ Περιστέρι- MyConnection
Lab Layout Design Plans
The Ink Lab - NAMC Oregon
Ink Lab Tattoo Studio | Kuala Lumpur
INK LAB Madrid España
Engineering Drawing Lab Layout | PDF | Machines | Mechanical Engineering
What Is Lab Layout - Design Talk
Farby akrylowe INK LAB wielokolorowy 24 szt. 60 ml (5906521019796 ...
Ink Lab (@ink_lab25) | Snapchat Stories, Spotlight & Lenses
Lab Layout Plan | PDF
Ink Lab
Nu är ansökan öppen till INK LAB 2023! INK LAB arrangeras av Borås INK ...
Lab Layout - YouTube
Hermes – INK LAB
Efficient Laboratory Layout Design: Best Practices & Tips – Lab ...
The Ink Lab | Tattoos and Piercings
Microbiology Lab Layout Design
Small Lab - PDF Layout Drawings
Size Chart – The Ink Lab
Lab Layout Design: 8 Strategies for Maximizing Efficiency and Workflow ...
Ink Lab | LinkedIn
Lab Layout - Idaho Microfabrication Laboratory (IML)
Inside the Secret Service lab with more than 15K ink samples
What Is A Laboratory Layout at Cinda Veloz blog
Fixed vs Mobile Lab Tables: Ultimate Buying Guide for Modern Facilities
Ink Adhesion Testing Services | Boston Industrial Solutions, Inc
Microbiology Lab Design VWR Laboratory Online Planning | VWR
Ink.Lab | Ink Project
Custom Ink - Reimagining the online shopping experience. | nclud - A ...
Laboratory Design And Layout COEL Office & Laboratory Design, Fit
Layout plans and images of each type of laboratory (a: LAB_PC; b ...
Types Of Laboratory Layout at Bianca Lovett blog
Turnkey Lab – Chennai Metco
Clinical Laboratory Design Layout
Programmable Ink
How to Design an Efficient Laboratory Layout for Maximum Productivity ...
Five Lab Design at Michael Purdy blog
Laboratory Design And Layout
The Ink Building
Inkjet Printing Lab - Sam Fox School of Design & Visual Arts ...
Optimizing Histopathology Laboratory Design Layout
The Next Generation Lab - Payette
Laboratory Layout.R3 | PDF
Industrial | Laboratory design, Design, Labs plan
Labs & Studios - School of Art & Design
Inklab Projects | Photos, videos, logos, illustrations and branding on ...
Member Directory | Portland Indigenous Marketplace
Home Page [home.sandiego.edu]
Laboratory Floor Plan | EdrawMax Templates
Different Laboratory Equipments of a Modern Dye House - Textile Learner
Create Your Ideal Laboratory | Free Consultations | OnePointe Solutions
Laboratory First And Second Floor Plan With Detail View Dwg ...
Types Of Laboratory Design - Design Talk
Laboratory Design Guidelines at Eden Disney blog