Showing 119 of 119on this page. Filters & sort apply to loaded results; URL updates for sharing.119 of 119 on this page
Modern Farmhouse Style House Plan | Harding
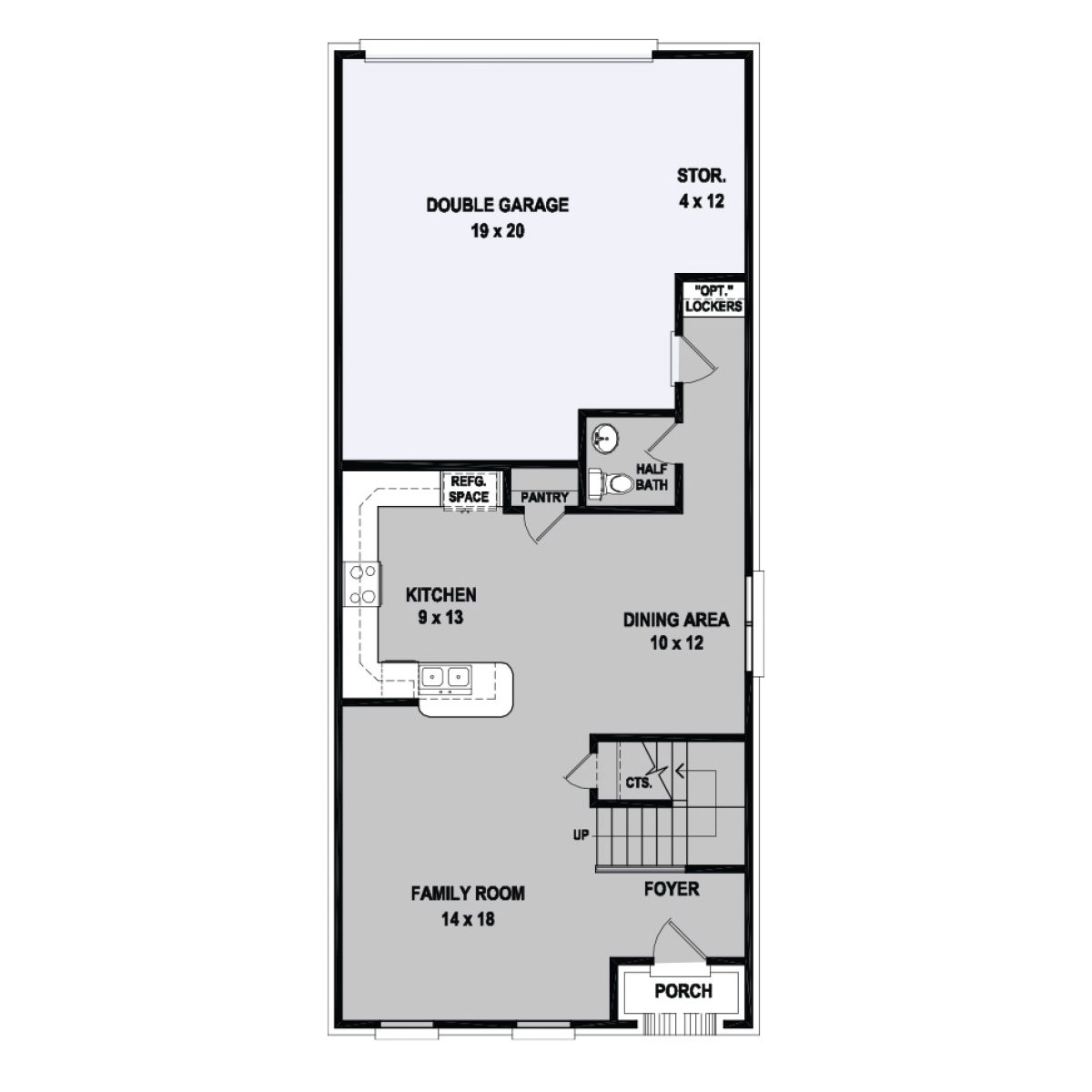
Harding Traditional Duplex Plan 055D-0074 - Search House Plans and More
Blueprint 2. First Floor Plan - Ephraim Harding House, South Pamet Roa ...
Harding #77708 | The House Plan Company
The Harding Floor Plan - Desert View Homes - New Home Construction
Blueprint 3. Second Floor Plan - Lot Harding House, North Pamet Road ...
Modern Farmhouse Style House Plan | Harding | Farmhouse style house ...
Harding I – NAD | 1587 Square Foot Ranch Floor Plan
Harding - Proposed Landscaping Plan
30 Harding house plan ideas | house plans, house, house styles
Oz : Harding Biplane plan - free download
Harding IV floor plan | AMH Homes
Harding 4232 Floor Plan - Highland Village | GFO Home
Harding 4232 Floor Plan - Santa Rita Ranch | GFO Home
Harding University Campus Map - All Maps
Harding Hall | Housing | University of Arkansas
Harding Floorplan at The Trails at Carpenter Farms by Century Communities
Gillingham - CJ Harding Design
Blueprint - Harding 2020 vision becomes clearer
Harding Floorplan at Reserve at Gum Springs by Century Communities
Harding – Frusterio Design
Harding Boutique Hotel / ANARCHITECT | ArchDaily
Pembury - CJ Harding Design
Sidcup - CJ Harding Design
Gallery of Harding Boutique Hotel / ANARCHITECT - 29
Maidstone Orangery - CJ Harding Design
Orchard Ridge - The Preserve | Harding | Floor Plans and Pricing
Harding Floorplan at Highland Reserves by Century Communities
San Francisco Theatres: The Harding Theatre
Gallery of Harding House / Athfield Architects - 10
Lot Harding House, North Pamet Road, Truro, Barnstable County, MA - 1st ...
Harding Floorplan at Oak Grove Glen by Century Communities
Harding Homes | Colchester
The Harding Park Release – The Green Winchelsea
Evolution Series / Harding 2860B by - ManufacturedHomes.com
Campus-Owned Apartments and Rental Property | Harding
Facility Floor Plan - None - BS Architecture - Community Center Floor ...
Basement Floor Plan - Premier Design Custom Homes
Cavalier Series The Harding from
Harding Floorplan at Parkview Estates by Century Communities
A Romantic Harding Waterfront Estate Wedding — Laura Olsen Events ...
Harding Models/Floorplans in Severn, MD - Toll Brothers
Harding Floorplan at Blue Sky Meadows by Century Communities
Steeplechase of Northville | The Harding Home Design | Floor plans ...
Harding University unveils new home for architecture students in ...
Three bedroom house layouts and floor plan ideas.
Hawthorne II – Harding Homes
HARDING — DNA ARCHITECTURE + DESIGN, INC.
Ranch Harding from Whispering Pines
Open Floor Plan Home Designs
The Estate – Harding Waterfront Estate
Hardin Floor Plan
Town of Harding, Road Surface Management Plan 2013 | North Central ...
Harding House - Buffalo Modular
Harding Township In-Progress | Gary Rosard Architect
Floor Plans – Harding Place
Hardin Floor Plan | Regency Homebuilders
Harding House / Athfield Architects | ArchDaily
Woodinville Construction - HARRISON architects
CREED: Student Work: Lisiane D'Amico
Home Designs | House Plans | Diverse Builders
MALL HALL OF FAME
The German-American Zweitürhaus – Lovettsville Historical Society & Museum
Design Process - HARRISON architects
Our Floor Plans | Gerber Homes
Pin on School building plans
Floor Plans — Ackerman Photography (Copy)
Timber Frame Garage with Overhang Featured Project | Stoltzfus Structures
Is NOPA Ready For The Harding’s Re-Development And Density? – SocketSite™
Floor planing Cut Out Stock Images & Pictures - Alamy