Showing 119 of 119on this page. Filters & sort apply to loaded results; URL updates for sharing.119 of 119 on this page
Xi'an Gaoxin No.1 High School Expansion and Social Shared Car Park / Qu ...
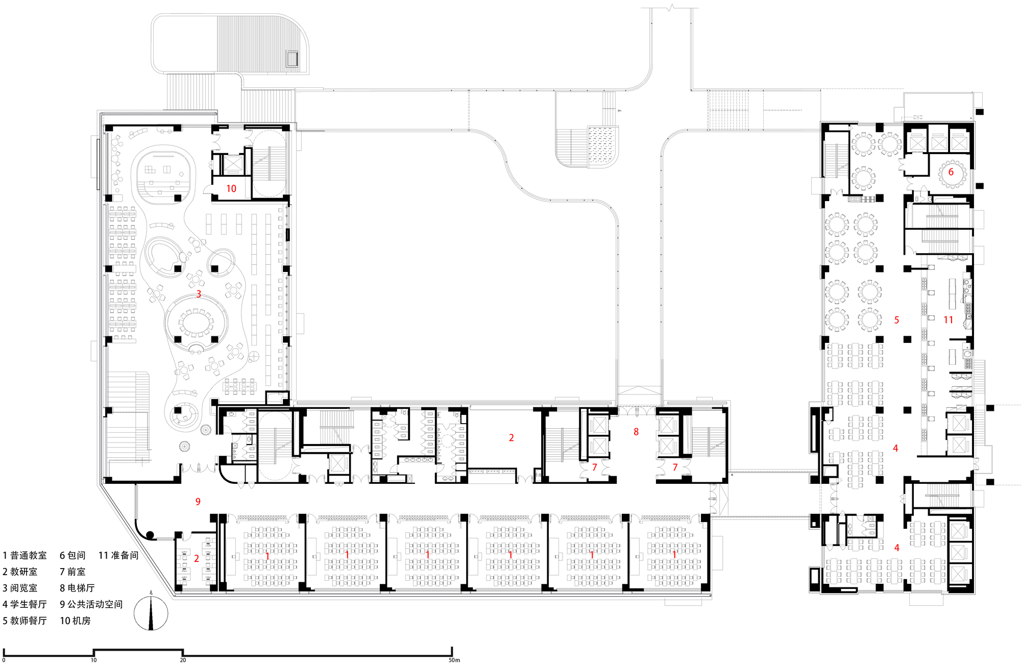
Gallery of Xi'an Gaoxin No.1 High School Expansion and Social Shared ...
Xi'an Gaoxin No.1 High School Expansion and Social Shared Car Park | Qu ...
Xi’an Gaoxin No. 1 High School – Dipont Education
Team 666X from Xi‘an China Gaoxin NO.1 High School *FINAL REVEAL*#vex ...
Xi'an Gaoxin No.1 High School Overview by Butnaru Daniela on Prezi
Xi’an Gaoxin No.1 High School Expansion: A Modern Educational and Urban ...
4K【中國西安】 | 西安高新二路,被誉为西安最美樱花大道 | cherry blossom in Gaoxin 2nd Road - YouTube
Gaoxin Sport Center modern architecture in Chengdu - Philippe Lejeanvre ...
Citadines Gaoxin Xi'an, Xian | FROM $47 - SAVE ON AGODA!
Guangdong Gaoxin New Material Co., Ltd.
10 Design Completes Gaoxin Hi-Tech Commercial Hub :: Behance
Weifang Gaoxin New Materials Co., Ltd.
GaoXin store Official Store in Singapore, Online Shop 03 2025
Anshan Gaoxin New Development Zone In Winter Snow High-Res Stock Photo ...
Hyatt Centric Gaoxin Xi’an Opens in the Heart of the Xi’an Hi-Tech Zone
Gaoxin International Clipart PNG, Vector, PSD, and Clipart With ...
GAOXIN 高鑫 特价表 - 20240810 - 164249 - 0000-compressed | PDF
Hyatt Centric Gaoxin Xi’an Opens in the Xi’an Hi-Tech Zone | TOP25 ...
Xinchuan Gaoxin Chuangzhi Plaza: A Conversation with Bo Jiang
Hyatt Centric Gaoxin Xi’an Opens in the Heart of the Xi’an Hi-Tech Zone ...
A' Design Award and Competition - Jansword Zhu Hyatt Centric Gaoxin Xi ...
Hyatt Centric Gaoxin Xi'an Mural Art by Jansword Zhu
gaoxin GX-6044-C Microcomputer Cardboard Piercing Strength Tester ...
Hyatt Centric Gaoxin Xi'an Art Murals | Golden Pin Design Award
CITADINES APARTHOTEL GAOXIN XI'AN XI'AN (SHAANXI)
Shandong Gaoxin Chemical Co., Ltd._CPVC,HCPE,CPE
Xi'an Brewery - Gaoxin | Hey-Xian.com
Gold Winner | Hyatt Centric Gaoxin Xi’an, China | Zinta Interior
Tremendous changes take place on Gaoxin Avenue
SOMERSET GAOXIN CHENGDU (Chine) : tarifs 2026 et avis
Chengdu Gaoxin Hopson Mall – Jumbo Globe
Gaoxin Gaming Keyboard 61 Exposed Keys High and Low Keys Key Separation ...
Gaoxin Digital is a fully encapsulated film specially designed for ...
CITIGO HOTEL GAOXIN XI\'AN XI'AN (SHAANXI)
Shenzhen Gaoxin Technology Co., LTD
Sunrise and sunset times in Langfang Longhe Gaoxin Jishu Chanye Kaifaqu
Gaoxin Technology 2026 Company Profile: Valuation, Funding & Investors ...
Courtyard under xi ‘an gaoxin mountain by ASL – mooool | Garten
Modern Hotel in Downtown Kunshan | Hyatt Place Kunshan Gaoxin
CITADINES GAOXIN XI\'AN APARTHOTEL XI'AN (SHAANXI)
Texworld in Beautiful Paris☀️☀️☀️ Welcome to our booth H3.L375 Gaoxin ...
Somerset Gaoxin Chengdu in Chengdu - Trip Canvas
Gaoxin SA
Gaoxin Customized Large 800l Blowing Sand And Dust Test Chamber Ipx6 ...
Shaoguan Gaoxin Plastic Products Co.,Ltd.
HYATT CENTRIC GAOXIN XI’AN - Updated 2024 Reviews, Photos & Prices
DANDONG GAOXIN DRYER MANUFACTURING CO., LTD Website: www.paperdryer.com ...
Jiangyin Gaoxin New Material Technology Co., Ltd-
Hyatt Centric Gaoxin Xi'An, Xi'an (updated prices 2025)
Gaoxin DC Water Pump High Efficiency Submersible Pump Integrated Float ...
Courtyard under xi ‘an gaoxin mountain by ASL – mooool | Courtyard ...
10 Design Completes Gaoxin Hi-Tech Commercial Hub
Gaoxin Hi-Tech Commercial Hub by 10 Design - Architizer
O raro Gaoxin 8 da Marinha Chinesa
SOMERSET GAOXIN CHENGDU - Updated 2024 Prices & Apartment Hotel Reviews ...
Visit Gaoxin: 2026 Gaoxin, Chengdu Travel Guide | Expedia
Visit Gaoxin: Best of Gaoxin, Chengdu Travel 2022 | Expedia Tourism
China's Naval Force showcases rare Gaoxin-8 EW aircraft with advanced ...
Chengdu-Gaoxin-Long & Short Term
Dutar Xinjiang Restaurant at Gaoxin-IslamiChina Travel