Showing 120 of 120on this page. Filters & sort apply to loaded results; URL updates for sharing.120 of 120 on this page
Dynamo Script for setting different colors to different sections of the ...
Dynamo script to change line colors of annotation objects in object ...
11 Steps to Create Your First Dynamo Script | BIM Pure Blog
Cost Analysis Dynamo Script – Revit news
Dynamo Tutorial - Creating Your First Script - YouTube
Dynamo Script: Random Colors for Louver Curtain Panels - RV Boost
Dynamo Script Guide - Dynamo Player - Dynamo
Perforated Panel – Dynamo Script For Revit in 6 Easy Steps
11 Steps to Create Your First Dynamo Script — REVIT PURE
Setup a Dynamo script for Dynamo Player
Dynamo Script and CodeBlock - Revit - Dynamo
Automate Bulk editing Elements' Parameters with Dynamo script | Dynamo ...
Сhange сolor for pipes - Dynamo Script for Revit
Dynamo script to change color of all tags in a project - Revit - Dynamo
Changing a Dynamo Script into a Revit Add-in(Plug-in) - Revit - Dynamo
Creating a Dynamo script to select individual families an change the ...
Simple dynamo script for title sheet - Autodesk Community
Dynamo script let the users setup and update a property set to a ...
Select which colors are applied to masses? - Revit - Dynamo
How to place 100 Revit Elements using Dynamo Points | Dynamo Script for ...
Houston Dynamo FC Color Codes | Color coding, Coding, Hex colors
Зміна кольору труб - Dynamo Script for Revit
Dynamo script - Create Randomized Facades with Adaptive Panels Download ...
Dynamo script for Identifying whether the slope is correct according to ...
Dynamo script - Renumber rooms in Revit Download - ArchSupply.com
Dynamo script help! - Autodesk Community
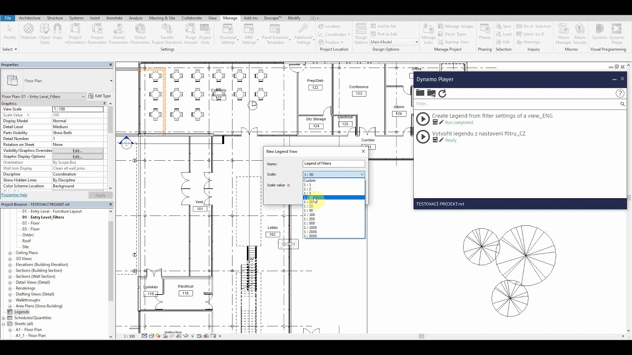
DYNAMO SCRIPT PREVIEW - CREATE LEGEND FROM FILTER COLOR SETTINGS - YouTube
Dynamo Color en Nodos (Diferencia tus scripts de esta manera) - YouTube
Color | The Dynamo Primer
Dynamo Graphic Standards at White arkitekter AB - Dynamo BIM
DYNAMO - How to apply a color from color range on an element in Revit ...
Dynamo Core 2.19 Release - Dynamo BIM
Solved: Example Dynamo Scripts - Autodesk Community
Dynamo Script: Set Walls Coarse Scale Fill Color and Pattern - YouTube
10 Essentials Dynamo Scripts Every BIM Specialist Needs To Know
Dynamo Scripts for Revit - YouTube
HOW TO START CREATING DYNAMO SCRIPTS? | Learn Dynamo for Revit | Dynamo ...
Dynamo Script: Select all Elements in Category | Dynamo - YouTube
3 Easy Dynamo Scripts for Revit — Even If You’re a Beginner! - YouTube
Download Revit Families and Dynamo Scripts | BIM Pure
Dynamo Scripts – Design to Visualization
Shows the Dynamo script, having custom nodes written in Python ...
Amazon.com: Dynamo Scripts for Revit: Revolutionize Autodesk Revit BIM ...
11 Steps to Create Revit Dynamo Scripts for Beginners
Dynamo Scripts for Task IDs and Space Naming.pptx
Dynamo scripts – Video tutorials for useful Dynamo scripts
4 Facts of Dynamo Scripts for Revit Automation Importance
GitHub - romangolev/dynamo-scripts: Dynamo scripts for Autodesk Revit
Dynamo Scripts For Revit - ( 100% Free BIM Content )
Dynamo Scripting - How Does it Work? | A Step-by-Step Guide
Dynamo Player color picking option - Civil 3D - Dynamo
DesignScript Syntax | Dynamo
Dynamo Script: Color Curtain Panels by Areas - RV Boost
Top Dynamo Scripts Every Architect Should Know in Revit | PAACADEMY
Dynamo scripts to create parameters. | Download Scientific Diagram
Adding User Interfaces to Dynamo Scripts (Presentation + Demo) - YouTube
Dynamo Scripts for Architecture - the Creative Route
Blog – Dynamo scripts
Customize scripts for Dynamo Player
Batch and Schedule Dynamo Scripts in Revit | Dynamo Multiplayer ...
Dynamo Templates - Architect Machines
How to install Revit Families and Dynamo Scripts | RD Studio
Color Element Types from Revit with Dynamo - Revit - Dynamo
Dynamo Player sample scripts
New To Dynamo- Having trouble creating a script to change certain ...
GitHub - browniris/Dynamo-Scripts-Basic-Learning: Basic Dynamo scripts ...
GitHub - tiamelief/Dynamo-script-for-MEP-and-fire-systems: Dynamo ...
Dynamo Scripts for Revit - UNDET
DesignScript Syntax | The Dynamo Primer
Dynamo Scripts for Revit - Professional Automation | RD Studio
Dynamo Script: Generate 3D Mass By Rooms and apply color scheme | Revit ...
Dynamo Isn’t Magic but These Tips and Tricks Might Seem Magical ...
GitHub - DynaTools/Dynamo.py: Collection of Dynamo scripts and nodes ...
Dynamo Scripts – Revit & Dynamo
Sequence of dynamo scripts - Packages - Dynamo
Create views and sheets (Dynamo script) Download - ArchSupply.com
ATLV/Education/Dynamo
Dynamo-Script/Create Sheets By Excel.dyn at main · KT6419/Dynamo-Script ...
"Your inputs lie outside of the allowable..." warning message appears ...