Showing 120 of 120on this page. Filters & sort apply to loaded results; URL updates for sharing.120 of 120 on this page
25 distribution agreement checklist - Free to Edit, Download & Print ...
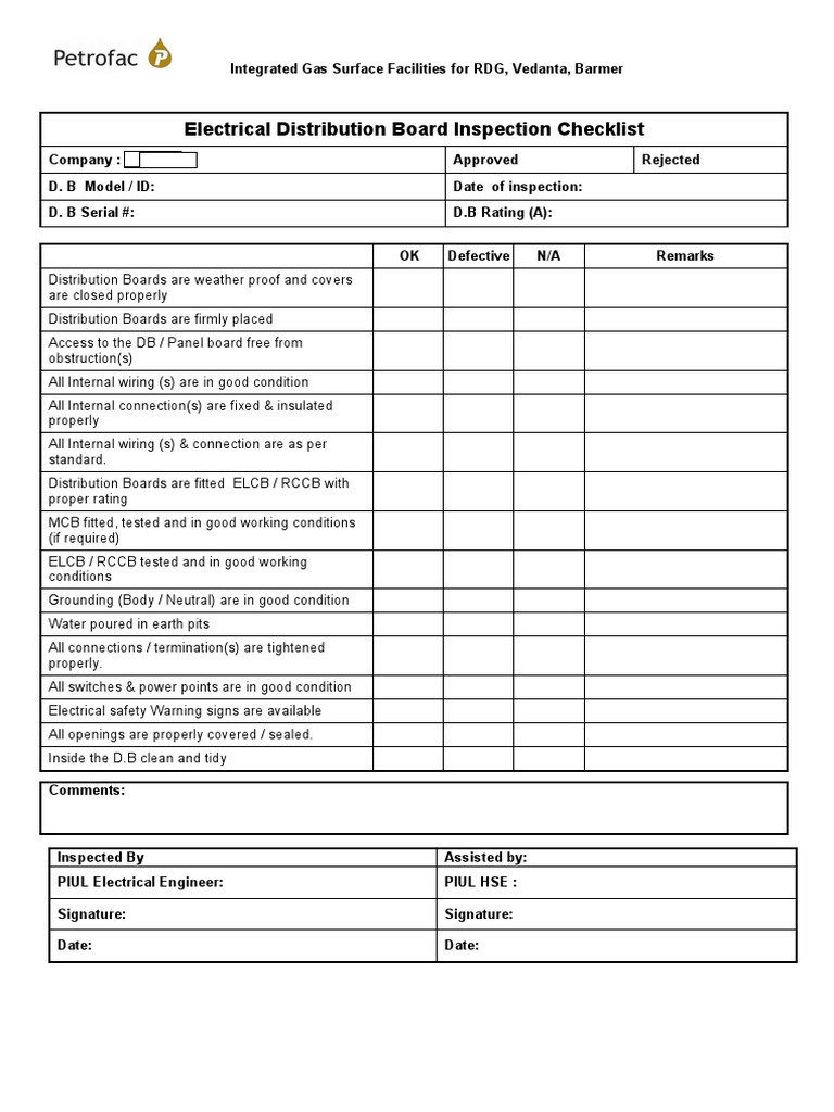
Electrical Distribution Board Inspection Checklist | PDF
Power Distribution Panel Inspection Checklist | PDF
Underground Distribution Cables and Terminations Checklist - Version 1 ...
FREE 26+ Distribution Checklist Samples in PDF | MS Word
Installation Checklist For Distribution Boards | PDF
Electrical Distribution Board Inspection Checklist | PDF | Technology ...
IMS 445-EQCL - Distribution Board Installation Checklist Rev01 | PDF
5 - 2 - 1 Distribution Site Assessment Checklist | PDF
QC-143 R2 Distribution Panel Checklist | PDF | Electrical Wiring ...
Electrical Distribution Checklist | PDF | Electrician | Electric Power ...
Distribution Panel Board Testing Checklist | PDF | Power Engineering ...
Checklist For Equipment Inspection Power-Sub Distribution Panel | PDF
Power Up Your Facility: The Ultimate Electrical Distribution Checklist ...
Free Sales Collateral Distribution Checklist Template to Edit Online
How to make a line distribution | (Line Distribution) - YouTube
Preventative Maintenance Checklist for Electrical Distribution Systems ...
Electrical Distribution Box (DB) Inspection Checklist | PDF
Main Distribution Board Inspection Checklist | PDF | Electrical ...
Distribution Board Installation Checklist | PDF
Sales Collateral Distribution Checklist Template - Edit Online ...
Sales And Distribution Management Checklist PPT Sample
Content Distribution Checklist PDF für effektive Inhaltsverbreitung ...
Power Distribution Line Repair: Essential Maintenance Techniques Explained
Distribution Substation Maintenance Checklist – Summary: This checklist ...
011a Line Maintenance Checklist | PDF
Preventative Maintenance Checklist For Electrical Distribution Systems ...
Distribution Board Inspection Checklist | PDF
Power Distribution Board Inspection Checklist | PDF
PROTECTED DISTRIBUTION SYSTEM CHECKLIST / protected-distribution-system ...
Electrical Distribution Board Checklist | PDF
Difference between Transmission Line and Distribution Line
Distribution Checklist PowerPoint Presentation and Slides PPT Slide ...
Line Clearance Checklist | PDF | Technology & Engineering
Distribution Line Essentials: Key Tips for Stability & Safety ...
The Ultimate Checklist for Strategic Distribution Center Master ...
Distribution Diagram (AKA Single Line Diagram) – Electrical Guy
Line Clearance Checklist Overview | PDF
HSE DOCUMENTS - COMMISSIONING CHECKLIST FOR FINAL DISTRIBUTION BOARD ...
Distribution Panel Board Checklist | PDF
Electrical Distribution Panels Inspection Checklist5 | PDF | Electrical ...
Check List For Sub Main Distribution Board Installation | PDF | Civil ...
Electrical Inspection Checklist [Free Download] | Finnley Electrical
The Key Components of an Effective Electrical Distribution System ...
Circuit Breaker Inspection Checklist at Petra Webster blog
Distribution Board Inspection Initial Quarterly | PDF
Ehs-07 - Check Lists For Electrical Safety in Main Distribution Boards ...
Distribution List Excel Template at Mickey Munos blog
Checklist1502 - Main Switchboard and Distribution Board | PDF ...
How To Create A Distribution List In Outlook [All Versions]
Overhead Electric Distribution Standards – JCDAT
Procedure Checklist Electrical Feederlines I. Pre-Mobilization | PDF ...
How To Create Distribution List In Excel
Transmission Lines vs. Distribution Lines: Key Differences Explained
Method statement for transmission line (lanco) | DOC
Distribution List Excel at Melvin Elrod blog
Assembly In-Process Inspection Checklist | PDF | Materials | Building ...
Baseline Schedule Checklist | PDF
Check List Distribution Board | PDF
CPES Workmanship Checklist for Transmission Lines | PDF | Building ...
Check Distribution List at Randall Maupin blog
CL - QA.21E Distribution Board | PDF | Electromagnetism | Electrical ...
Creating a Distribution List
2019 Form AU E12 Fill Online, Printable, Fillable, Blank - pdfFiller
Panel check-list | PDF