Showing 120 of 120on this page. Filters & sort apply to loaded results; URL updates for sharing.120 of 120 on this page
6 Development Control | PDF | Urban Planning | Road Transport
Development Control Plan and Technical Manuals - City of Newcastle
Development Control Computation Guide | PDF | Structural Engineering ...
Relation between plan-making, development control and plan enforcement ...
build Development Control - Assessment 1.pdf - Development Control ...
Create uk planning permission and uk building control drawings by Aylin ...
Semsys | Building Automation | Control Drawings
Development Control Rules | PDF | Building
Weston General Hospital Development Control Plan | stretto architects ...
Development control rules and regulation | PDF
Development control rules and regulation | PPT
Development control process and functions of GIS | Download Table
Development control rules and regulation | PDF | Developmental Sites ...
Building Control Drawings | Building Regulation Drawings | Building ...
Building Regultation | Building Control Drawings | Lccl Construction
Create uk planning and building control drawings by Aylin_m | Fiverr
Building Regulations & Building Control Drawings - CK Architectural
The Difference Between Planning and Building Control Drawings
Uk building control drawings building regs drawings planning permission ...
SOLUTION: Proposed land development drawings - Studypool
Development Control Company | Kiswishi
Building Control Drawings - Planning Drawings | Architects
Griffith Residential Development Control Plan (DCP) – Site Specific ...
1 Building Control Drawings | PDF | Foundation (Engineering ...
A Comprehensive Overview of Development Control Regulations in India ...
3.1 development control rules | PDF | Civil Engineering Industry ...
Create uk planning permission and building control drawings as an ...
Development Control Norms (Selected Tables) | PDF
Specification Control Drawings at Steve Nadeau blog
Development Control Regulations Overview | PDF | Building Code | Safety
3.1 development control rules | PDF
Building Regulations Drawings & Building Control Submission | Online ...
Cadalot Services Limited: Drawings for Planning & Building Control
Development Control Rules | PDF | By Law | Government
What Are Building Control Drawings - Dibujos Cute Para Imprimir
Development Control Rules | PDF | Building | Basement
Building Regulation & Control Drawings for Extension London - Design ...
What are Development controls | PPTX
PPT - Development Control: Summary Diagram PowerPoint Presentation ...
Development controlBO | PDF
Development Controls | PDF
Structural Design Development Checklist, Drawing Checklist, Design ...
Development Controls | PDF | Civil Engineering | Building Technology
The A-Z of Building Regulations Drawings with Building Regs Checklist ...
Development Drawing at PaintingValley.com | Explore collection of ...
Building Regulation Drawings Dagenham - Lizben Consult
Development Controls & Zoning Guide | PDF
Studio Architecture Building control services — Studio Architecture
Specification Control Drawing Template & Checklist
Understanding Development Controls: Key Regulations in Urban | Course Hero
Building Regulation Drawings – AK Studios Architects
Building Regulations drawings for design and construction works
Development Controls in Architecture | PDF
Your quick guide to: Building Regulations Drawings | Fifi McGee
Drawings
Architectural drawings plans planning permission
A Step-by-Step Guide to Passing Building Control Inspections: Essential ...
What are Development controls | PPTX | Developmental Sites | Real Estate
New Control Plan (CP) 1st Edition 2024 | Become expert in control plan ...
Drawing showing development controls, including heritage buildings to ...
Demystifying Building Control Drawings: An Essential Guide For ...
Do uk, us building control drawings, building regs drawings, floor plan ...
Development Controls for Architecture and Fine Arts Students | Course Hero
Building Regulation Drawings - Wilson Architectural Engineering
Development Controls | Download Free PDF | Real Property Law | Property Law
Get Your Planning Permission Drawings UK
Building Regulation Drawings for Extensions in London
Blueprinting Success: Navigating Challenges In Building Control ...
What Is Town Planning Process - Design Talk
Developmental Controls Overview | PDF
Services
Building regulation drawing - AJ Plans Property Planning and ...
Building Regulations - Planning Consultants Manchester
ISO 9001 Dissected | Easy To Follow Guide
Building Regulation Drawings: A Complete Guide - AA Drafting Solutions
Building Regulations - Planning Consultants London
Everything you need to know about our Stage 2: Building Regulation ...
Services – Young Building Design
What to Include in Your Building Regulation Application: Essential ...
Services – Metro Controls, Inc.
Building Regulations Drawings: House Extension Regulations - DeVis ...
Blueprint of a building design with floor plans, detailed construction ...
We're here to help you get the most out of your space
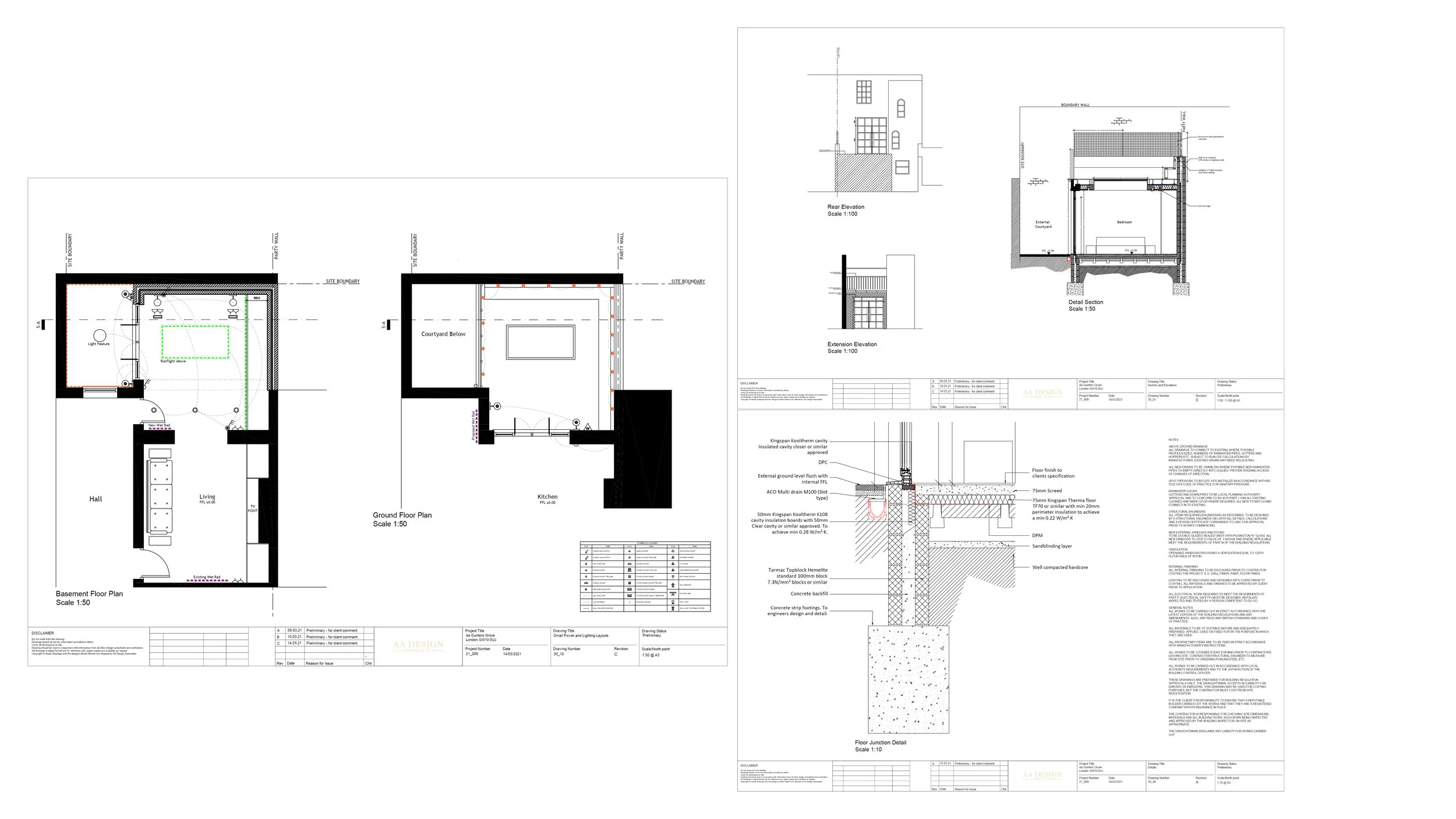
AA Design
ArchEvolve: Mendip Rd Project - Architectural Services
Building Regulation Drawings: 5 Must-Know Essentials For Success ...
Regulations – Richard Smith. Chartered Architect. RIBA.
Construction Drawing Management Software | Archdesk
Draw and Plan — Draw and Plan
Planning & Building Regulations — DARCY ARCHITECTS