Showing 120 of 120on this page. Filters & sort apply to loaded results; URL updates for sharing.120 of 120 on this page
Install or create extensions to customize DevTools
Create Extensions | Developer | Zoho Inventory
Create your own extensions (objects, behaviors, conditions, actions or ...
Over Permissive and Proliferating, AI-Driven Browser Extensions Create ...
Create Extensions | Intulse Support
How to Create Plugins and Extensions for Enhanced Functionality | Storyblok
Create Extensions | Extensions | Zoho Books
No Code Chrome Extension Builder: Create Extensions in Seconds - DEV ...
How To Create Chrome Extensions - My First Extension
Extensions: Create Assignment Extensions – Aula
Create and Manage Extensions
Tutorial | Create a Site Plugin for the Wix Stores Product Page
Create a DevTools extension, adding a custom tool tab and panel ...
Implementing Code Splitting in Shopify Theme App Extensions using ...
DEVBLOCKS - YouTube
Devblocks
DevTools extensions
Create Your First Extension · Visual Studio Code - The Essentials
Create the extension
Add custom UI to DevTools using extensions - Microsoft Edge Developer ...
Designing and Deploying Chrome Extensions :A Step-by-Step Roadmap
Generating extensions using templates | Cocos Creator
How to Create a Web3 Chrome Extension | QuickNode Guides
Create a Chrome extension from scratch step-by-step (2024)
What Is Chrome Extensions Developer Mode at Kevin Marsh blog
How to Create and Publish a Chrome Extension in 20 minutes
Extensions / Develop | Chrome for Developers
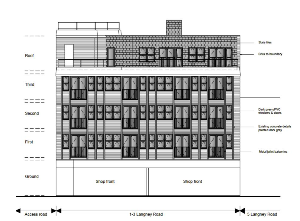
Extension to Eastbourne property to create four new flats proposed
Debug extensions | Get started | Chrome for Developers
Create an extension · System Designer
Creating Extensions - Dialogic 2 Documentation
Create Dev Box Image Definition Files for Team Customizations ...
Creating Extensions for Oracle Cloud Apps using VB Studio
Browser extensions - DevTools extension
How To Create a Simple Chrome Extension | Chrome Extension Developer
GitHub - softedco/Scratch-block-maker: Create blocks for custom scratch ...
Safari & Firefox extensions still break / blocks after page load - DEV ...
Building extensions #2: Creating extensions for Zoho Projects using a CLI
DevBlocks - Perfect your product launch plan with Notion templates
Create Extension Chrome: Bí Quyết Tạo Extension Đột Phá Cho Trình Duyệt
Azure DevOps Extensions | PPTX
Extend DevTools | Chrome Extensions | Chrome for Developers
Zoho Sigma: A Step-by-Step Guide to Creating Extensions
10 VSCode extensions every dev must have - DevDojo
Creating Extensions - Nova Library
Writing Extensions for Chrome: A Developer's Guide
Create extension pack for Visual Studio Code - DEV Community
DevBlocks | LinkedIn
How To Write Extensions And Themes · phcode-dev/phoenix Wiki · GitHub
How to Create Your Own Browser Extension | WIRED
Azure DevOps Extensions | PPT
Introduction to Google Chrome Extensions Development | PDF
Create extension pack for Visual Studio Code | Mister Gold
Extensions - Derivative
Create Variable Blocks · Issue #1103 · TurboWarp/extensions · GitHub
How To Create Your Own Chrome Extension - A WP Life Blog
Create extension pack for Visual Studio Code : r/DevTo
How to Create extension java code help with chatgpt and Create ...
Publish | DevToys
Создание расширений палитры команд в C# — пошаговое руководство ...
Extension Templates and Compile Builds | Cocos Creator
A Step-by-Step Guide to Creating a Chrome Extension with React
How to Develop a Chrome Extension: A Beginner’s Guide | by Resthubs ...
How to make your own Chrome Extension?
NFL insider's prediction for a Bijan Robinson extension will make ...
Insider offers one way Pirates star can make $140 million extension ...
Rays need to make move to sign star slugger to extension
How To Make A Chrome Extension Using Javascript
How to Build a Chrome Extension using React and Tailwindcss - DEV Community
Build and Publish a Chrome Extension
Something New: Making Extension Using Blocks - Extension Development ...
Creating a Chrome extension with React and TypeScript - LogRocket Blog
VS Code Extension Creator - Visual Studio Marketplace
mblock_extension_guide.pdf
Catalyst Docs
GitHub - ndiego/create-block-templates: A collection of templates for ...
View and edit extension storage | Chrome DevTools | Chrome for Developers
How to Develop Chrome Extensions: A Comprehensive Guide - DEV Community
What's new in DevTools, Chrome 132 | Blog | Chrome for Developers
Build your first chrome extension (Part 1) - DEV Community
How to use Rapid Dev blocks
Creating extension using CLI | Online Help | Zoho Projects
How to Develop Chrome Extension: A-to-Z Guide for Beginners!
How To Develop A Chrome Extension
Something New: Making Extension Using Blocks - Page 2 - Extension ...
What's New in DevTools (Chrome 112) | Blog | Chrome for Developers
Creating your Chrome Extension: A Step-by-step Guide - DEV Community
Creating Your Own Extension | Chrome Extension Security
hns_devblocks - YouTube
How to make your own Google Chrome Extension
Web Extension Setup | Developer Documentation