Showing 115 of 115on this page. Filters & sort apply to loaded results; URL updates for sharing.115 of 115 on this page
Communications Backbone Cabling Inspection Checklist
Small Business Startup Checklist for First-Time Founders » Backbone America
GBIF Checklist bank and the backbone | PDF
Support Backbone Update Checklist | PDF | Transport Layer Security ...
CheckList Fro Support Backbone Update SOLMAN 7.2 - sps8 | PDF ...
EMA ECTD Centralised Procedure MAA Backbone Checklist | PDF
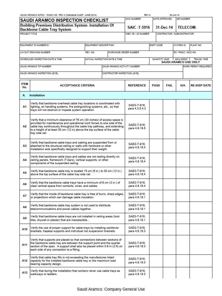
Saudi Aramco Backbone Cable Tray Checklist | PDF | Ceiling | Equipment
How to start your financial literacy checklist | Backbone Planning ...
SAP Support Backbone Update Checklist | PDF | Transport Layer Security ...
The Startup Systems Checklist that Every New Founder Needs » Backbone ...
C - March Gardening Checklist - Backbone Valley Nursery
November Gardening Checklist - Backbone Valley Nursery
March Gardening Checklist - Backbone Valley Nursery
October Gardening Checklist - Backbone Valley Nursery
GBIF ChecklistBank and Backbone building | PDF | Biological Sciences ...
GBIF ChecklistBank and Backbone building | PDF
Standard Work: The Backbone of Operational Excellence | TeamAssurance Blog
Core Functions of a Backbone Organization - Eastside Pathways
Backbone Models Cheat Sheet | PDF
Back care checklist | DOCX
Backbone Support Assessment Worksheet - Florida College Access Network
Backbone | PPTX
Backbone
Backbone - What is it?
Backbone Management at Facebook - Engineering at Meta
Backbone Toolkit - Collective Impact Forum
Back Care Checklist | PDF | Massage | Vertebral Column
Backbone Examples at Blake Pardey blog
[Video] Backbone on LinkedIn: Backbone 101
PPT - The importance of backbone PowerPoint Presentation, free download ...
Premium Photo | Human backbone anatomy Illustration
Backbone Mobile Gaming
PPT - Backbone Network types PowerPoint Presentation, free download ...
C. spinarum L. in GBIF Secretariat (2019). GBIF Backbone Taxonomy ...
Diagram Of Backbone / Backbone Graphs Of The Graph Of Layers Obtained ...
PPT - Implementing and Maintaining an ISP Backbone PowerPoint ...
PPT - Structured Backbone Design of CNs PowerPoint Presentation, free ...
Backbone Design | PDF | Computer Network | Osi Model
Backbone Review - Gamecritics.com
PPT - Collective Impact: Backbone Organizations PowerPoint Presentation ...
Virtual backbone schemes classification | Download Scientific Diagram
Backbone & Graphs | PPTX
Backbone architecture characteristics | Download Scientific Diagram
Aircraft Checklist: Your Backbone for Safe Flight Operations - YouTube
Create a Quick & Easy Backbone Model - Homeschool Hideout
PPT - Backbone Networks PowerPoint Presentation, free download - ID:201763
Diagram Of Backbone : Diagram Of Backbone / Spinal Cord Sections Of ...
illustrates the overall structures of the combination of backbone ...
Understanding the Backbone 3rd - 6th Grade Video | Wayground
Why Providers need to Grow a Backbone - Thriving Childcare
PPT - Backbone Analysis Grid PowerPoint Presentation, free download ...
Backbone Structure at Jean Polk blog
(PDF) South African National Plant Checklist: backbone of plant taxonomy
6 Beginner Tips For Backbone
Business Startup Checklist: A Step-by-Step Guide
(PDF) The South African National Plant Checklist: Maintaining the ...
Introduction to GBIF
PPT - Integration - Application Systems PowerPoint Presentation, free ...
Backbone的使用方法_backbone service中打开-CSDN博客
Learn more - Every Child Central Queensland Incorporated
DEEP: The 4 Characteristics of a Good Product Backlog | Easy Agile
深度学习常用的backbone有哪些_backbone 深度学习-CSDN博客
B A C K B O N E :: Software for Supply Chain Solutions
PPT - OBJECTIVES PowerPoint Presentation, free download - ID:155870
The New User Story Backlog is a Map - Jeff Patton & Associates
为何需要组件化 — easy_rec 0.8.6 documentation
The detailed structure of the Backbone. | Download Scientific Diagram
Backbone.js Tutorial - GeeksforGeeks